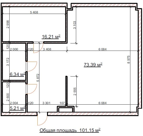
Оренда офісу 127,8 кв.м № 305

Підібрати приміщення

До вашої уваги в довгострокову оренду пропонується просторий, світлий офіс № 305 open space .

Який знаходиться на 3 поверсі ,open space + 2 кабінета з кухнею  площею 127,8 м.кв.  з урахуванням коефіцієнту площ загального користування - 1,2 у БЦ Валмі. Ремонт з  базовим офісним оздобленням, покриття підлоги - ковролін. Можна використовувати під будь-який вид діяльності (офіс, інтернет магазин та інше).  

Будівля оснащена трьома газовими котельнями,  центральним кондиціонуванням. Внутрішнє оздоблення БЦ задовольнить найвищі вимоги орендаря – м'які килими, стильні дерев'яні панелі, дубова столярня, сучасні ліфти. 

    Крім цього, комплекс забезпечується цілодобовою охороною та власною службою експлуатації та сервісу, в бізнес-центрі ведеться зовнішнє та внутрішнє відеоспостереження за будівлею та всередині нього, діє електронно-пропускна система. Вхід до будівлі здійснюється через центральну рецепцію за картками. Для оренди офісів у бізнес-центрі є всі зручні умови.               

 

Переваги бізнес-центру:

🔹 презентабельний інтер'єр в класичному стилі;

🔹 два пасажирських і два вантажних ліфта;

🔹 сучасні інженерні системи;

🔹 охорона 24/7, цілодобова система відеоспостереження;

🔹 закрита парковка;

🔹 конкурентна орендна ставка;

🔹 обладнаний конференц-зал, на 30 осіб;

🔹 кафе з бізнес ланчами.

 

 

 

🏘 Наша компанія є оператором власних бізнес-центрів! Співпрацюємо з посередниками.