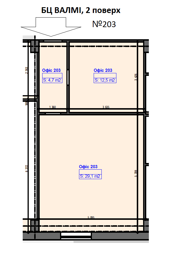
Оренда офісу — 55,56 м² № 203

Підібрати приміщення

Пропонується в оренду офіс № 203 на другому поверсі в БЦ Валмі. Він розташований у Подільському районі Києва за адресою вул. Новокостянтинівська 13/10, 5 хвилин на авто, від м. Почайна. Площа приміщення 55,56 м.кв, з урахуванням коефіцієнту площ загального користування.
Ремонт виконаний з базовим офісним оздобленням, покриття підлоги - ковролін. Комерційне приміщення можна використовувати під будь-який вид діяльності (офіс, інтернет магазин, аудиторські, консалтингові агенції та інше).
Будівля БЦ Валмі оснащена інженерними системами - трьома газовими котельнями, центральним кондиціонуванням. Внутрішнє оздоблення БЦ задовольнить найвищі вимоги орендаря – м'які килими, стильні дерев'яні панелі, дубова столярня, сучасні ліфти.
Крім цього, комплекс забезпечується цілодобовою охороною та власною службою експлуатації та сервісу, в бізнес-центрі ведеться зовнішнє та внутрішнє відеоспостереження за будівлею та всередині нього, діє електронно-пропускна система. Вхід до будівлі здійснюється через центральну рецепцію за картками.

Переваги бізнес-центру Валмі:
🔹 презентабельний інтер'єр в класичному стилі;
🔹 два пасажирських і два вантажних ліфта;
🔹 сучасні інженерні системи;
🔹 охорона 24/7, цілодобова система відеоспостереження;
🔹 закрита парковка;
🔹 конкурентна орендна ставка;
🔹 обладнаний конференц-зал, на 30 осіб;
🔹 кафе з бізнес ланчами.