Киев, Украина
+38 067 232 44 91
Вакантные площади
Все Объекты
ТРЦ COSMO MULTIMALL
БЦ на ул. Дениса Монастырского 3А
ТЦ Ультрамарин
Глубочицкая, 44
БЦ «Валми»
БЦ «Кронос»
БЦ «Кузнецкий»
Cклад г. Боярка, ул. Магистральная
БЦ на ул. Дружбы Народов
ЖК «Изумрудный»
Блог
Контакты
RU
RU
UA
Предыдущее помещение
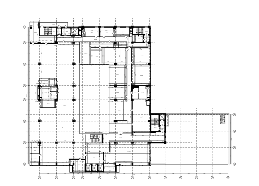
Аренда офиса — 4700 м2 № 6-7-4400
ТРЦ COSMO MULTIMALL
Двухэтажный офис в аренду возле г. Шулявская, ул. Вадима Гетьмана 6. Номер офиса 6-7-4400. Ремонт в стиле лофт. Опенспейс+кабинетная система. Общая площадь: 4700 кв.
Подобрать помещение
×
Подобрать помещение
Ваше имя
Ваш контактный номер *
Ваш Email *
Назначение помещения
Офис
Магазин
Комментарий
close
chevron-down
bars